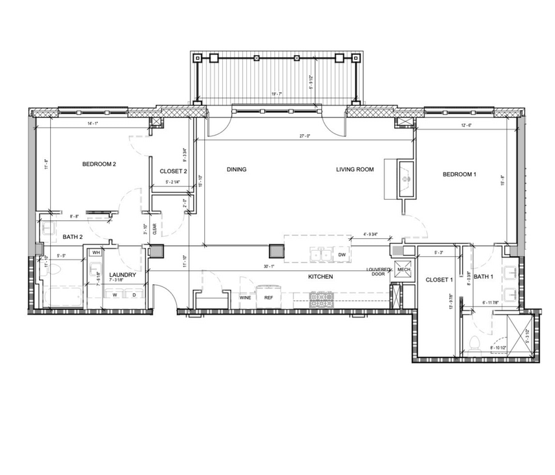
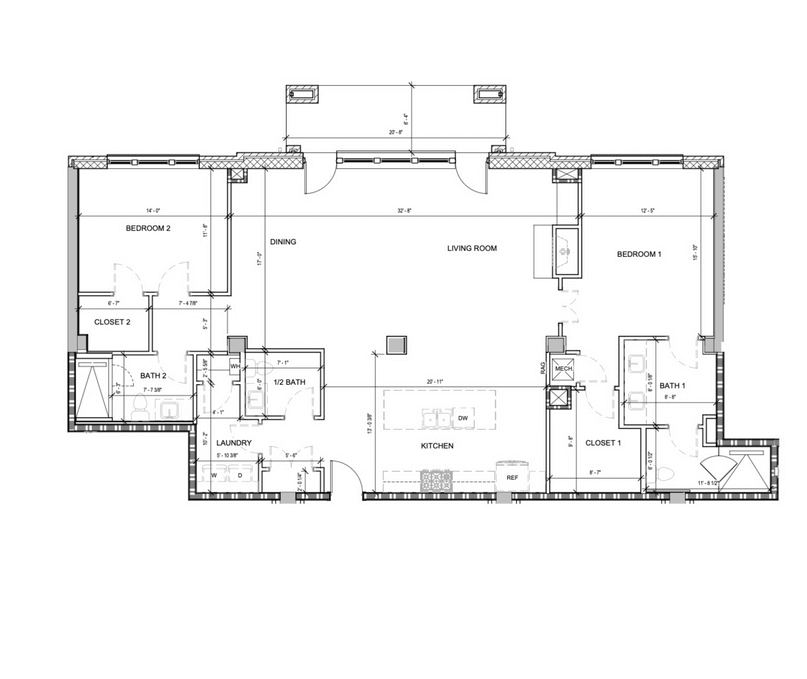
The Shorecrest
The Shorecrest floorplan offers a spacious 1,500 square feet of living space, featuring 3 bedrooms and 3 full bathrooms. Designed for both comfort and functionality, this layout provides an open-concept living area that seamlessly connects the kitchen, dining, and living spaces, perfect for entertaining or family gatherings. Each bedroom is well-sized, with the master suite including an ensuite bath for added privacy and luxury. The additional two bedrooms are versatile, ideal for guests, office space, or family members, with two more full bathrooms nearby for convenience. With modern finishes and thoughtful design, the Shorecrest is a great option for those seeking a balanced blend of style and practicality.
Download Floorplan.png)